
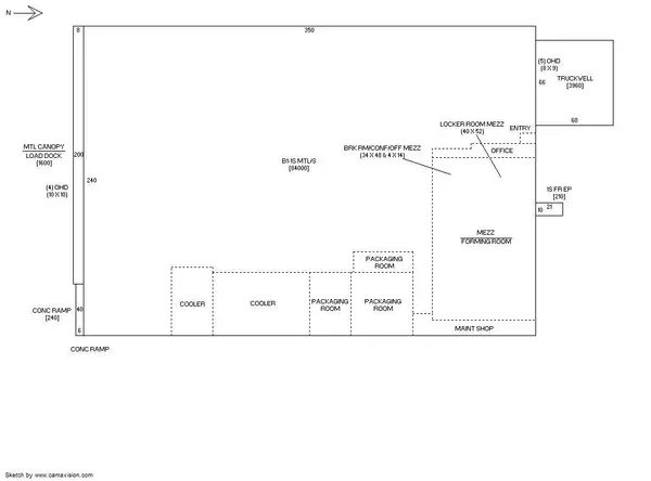
84,000 SqFt
84,000 SqFt
Key Details
Property Type Commercial
Sub Type Commercial
Listing Status Active
Purchase Type For Rent
Square Footage 84,000 sqft
MLS Listing ID QC4262997
Year Built 1973
Annual Tax Amount $115,632
Tax Year 2023
Lot Size 10.000 Acres
Acres 10.0
Property Sub-Type Commercial
Source rmlsa
Property Description
Location
State IA
County Scott
Area Qcara Area
Zoning I-2
Direction W River Drive/Bus. 61 to S. Stark St
Interior
Heating Forced Air, Natural Gas, Individual Unit
Cooling Central Air, Other
Flooring Reinforced Concrete
Fireplace N
Exterior
Fence Yes
View true
Roof Type Metal
Garage 1
Building
Faces W River Drive/Bus. 61 to S. Stark St
Sewer Public Sewer
Water Municipal/City
Structure Type Steel Frame
Others
Tax ID R0537-07
GET MORE INFORMATION

Team Leader | License ID: S6239700 | 47516300
+1(563) 505-1806 | kylerobinson@epique.me







